S_14a
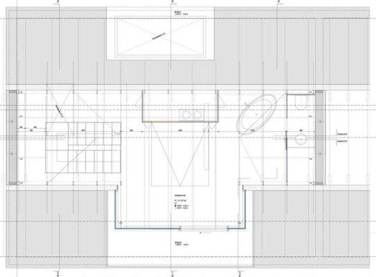
Umbau eines Einfamiliendoppelhauses in Gräfelfing, durch Umplanung, Sanierung und Neuerschließung des Dachgeschosses.
Zur Erneuerung der Substanz und Erweiterung des Wohnvolumens wird ein Dachstuhl aus schlanken Stahlprofilen geplant. Um die hinzugewonnene Fläche zu erschließen, wird eine Treppenskulptur aus Stahl in den Baukörper eingebracht. Ergänzung und Neugestaltung der Fassade durch eine Dachgaube mit Austritt.
Die hinzugewonnene Wohnfläche wird als großzügiger Schlafbereich genutzt und optimiert durch die Neuplanung eines Badbereichs.






