Geo_22
Das unter Denkmalschutz stehende Mehrfamilienhaus in der Georgenstraße in München/ Schwabing wurde 1884 errichtet.
Die Gebäudesubstanz war geprägt durch langjährigen nachlässigem Bauunterhalt und nicht denkmalgerechte Sanierungsmaßnahmen.
In enger Abstimmung mit der Landesdenkmal-pflege gelang eine rücksichtsvolle Restaurierung, eine originalgetreue Wiederherstellung, Ergänzung und Konservierung der historischen Fassadenelemente, Fenster, Türen, der hofseitigen Ballustrade und des Dachs.
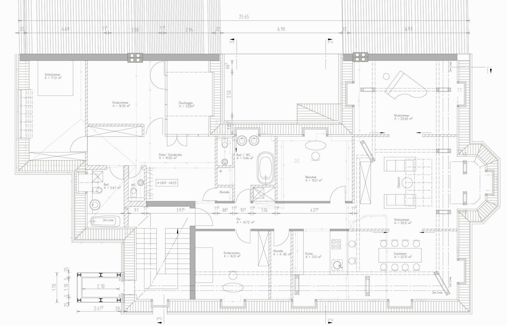
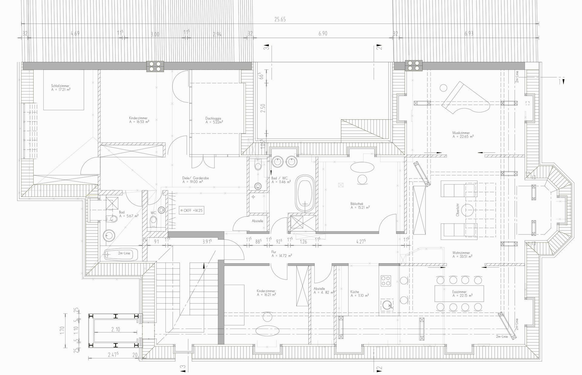
Ergänzt wurde der denkmalgeschützte Bestand durch einen frei an der Fassade stehenden Stahl-/ Glasaufzug, der die Etagen komfortabel erschließt. Durch den Neuausbau des Dachgeschosses konnte das Gebäude außerdem um eine Wohneinheit erweitert werden.

  
 








