M22_Wohnloft
Die entkernte Hülle eines Bestandbaus aus den 50er Jahren wurde in eine neue Gesamtform integriert und enrgetisch ergänzt. Zusammen bilden der Bestandsbau und seine Ergän-zung den neuen Baukörper, der als KW 55 Haus konzipiert ist.
Der Baukörper zeigt sich als reduzierter, warmgrau verputzter Kubus mit groß dimensionierten dunkelgrauen Fensterelementen und Öffnungsflügeln aus heimischer Eiche.
Neu ergänzt wird das Gebäude durch ein allseitig zurück- springendes Staffelgeschoss. Umhüllt von einer Außenhaut aus vorbewittertem Titanzink das dem Gebäude eine kraftvolle Ausstrahlung gibt.

Der Baukörper zeigt sich als reduzierter, warmgrau verputzter Kubus mit groß dimensionierten dunkelgrauen Fensterelementen und Öffnungsflügeln aus heimischer Eiche.
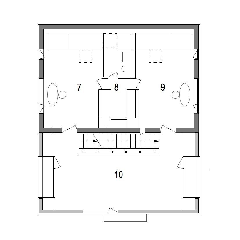
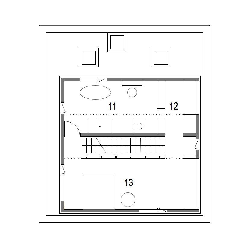
Innenraum
Der Innenraum folgt der reduzierten Architekturhaltung. Verputzte Flächen kontrastieren mit kargen unbehandelten Sichtbetonwänden und -decken sowie geglätteten Sichtestrichböden.
Erschlossen wird der Innenraum über eine einläufige Stahltreppe. Wie aus einem Stück Blech gefaltet windet sie sich vom Keller bis ins Staffelgeschoss. Sie ist das zentrale Gestaltungselement. In Ihrer Mehrfachfunktion nicht nur Treppe sondern raumgreifendes Regal, Bibliothek und überdimensionaler Setzkasten.
Die schroffe Materialität mit ihren sichtbaren Spuren des Bauens bildet den Hintergrund für die Inszenierung von inspirierter Kunst und handwerklichen Gestaltungsstücken.
Ein sockelloser Block aus grauen, Linoleum belegten Multiplexplatten als freistehendes zentrales Küchenelement.
An der Arbeitsfläche aus offenporigem Sandstein und großem Edelstahlbecken, steht man sich kommunikativ beim Kochen gegenüber. Raumhohe, wandbündige Schränke mit
Eichen- und Lackoberflächen, nehmen Kochwerkzeuge, Geräte und Geschirre auf.
Veröffentlichungen
***ARCHIPENDIUM*** Architekturkalender
Kalenderblatt18_02_2018

***SCHÖNER WOHNEN*** 01/ 2016:
Grautöne in allen Stufen grundieren die Stimmung der Räume, wobei die Materialien originär wirken. Vor allem Sichtbeton kommt an den Wänden und Decken pur zur Geltung, steigert die Wirkung von wohldosiert eingesetzter Eiche und bildet zudem ein spannendes Umfeld für ausgesuchte Kunst. Felle, Textilien, Bilder, Leuchten und Objekte reichern die asketisch puren Räume mit Naturakzenten, Lichtblicken und Stilleben an, die zudem sparsam und feinfühlig arrangiert sind und Professionalität bezeugen.
Grautöne in allen Stufen grundieren die Stimmung der Räume, wobei die Materialien originär wirken. Vor allem Sichtbeton kommt an den Wänden und Decken pur zur Geltung, steigert die Wirkung von wohldosiert eingesetzter Eiche und bildet zudem ein spannendes Umfeld für ausgesuchte Kunst. Felle, Textilien, Bilder, Leuchten und Objekte reichern die asketisch puren Räume mit Naturakzenten, Lichtblicken und Stilleben an, die zudem sparsam und feinfühlig arrangiert sind und Professionalität bezeugen.

***Best of HOUZZ*** AWARD
Kategorie Design für Küchengestaltung

















