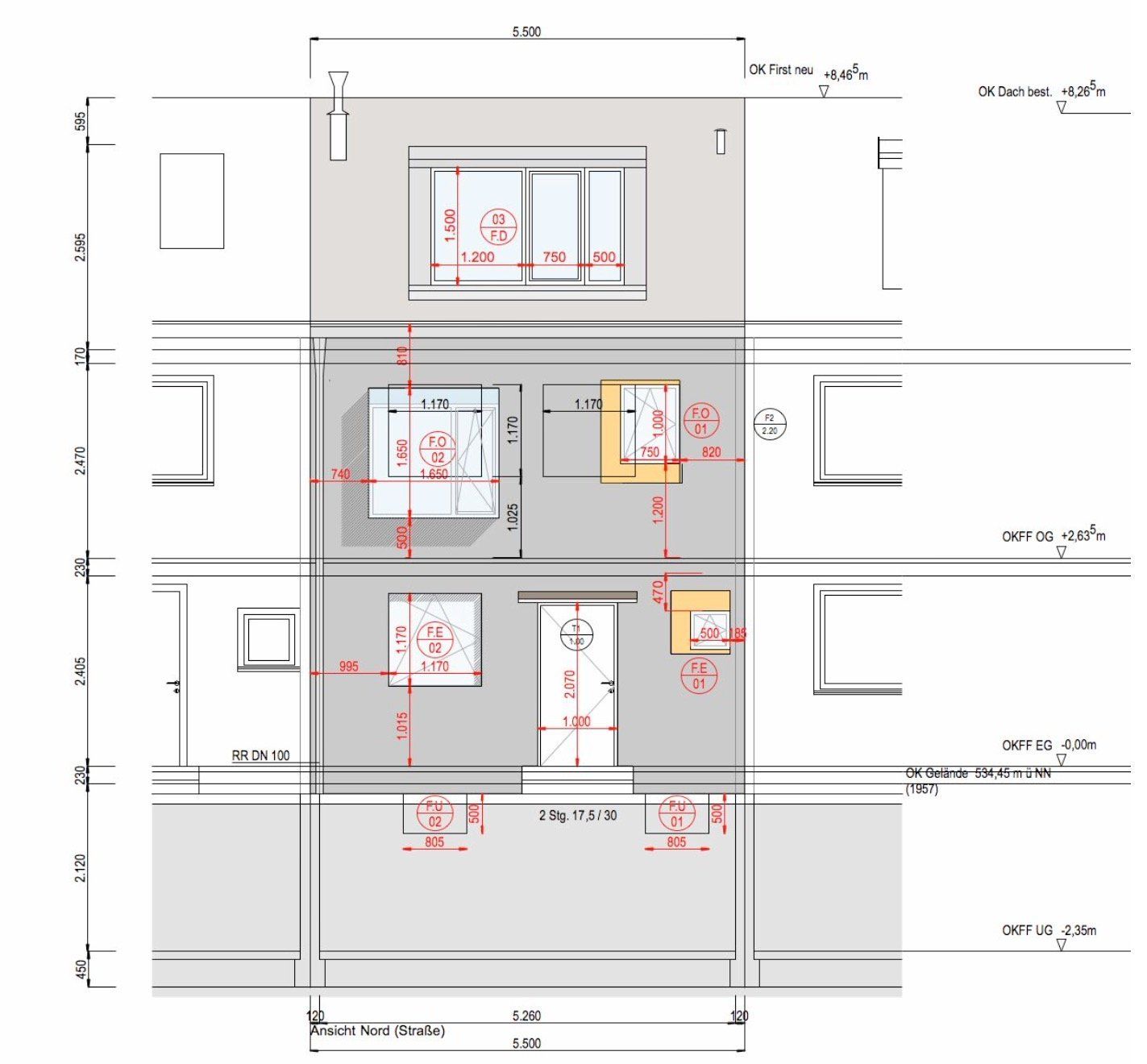
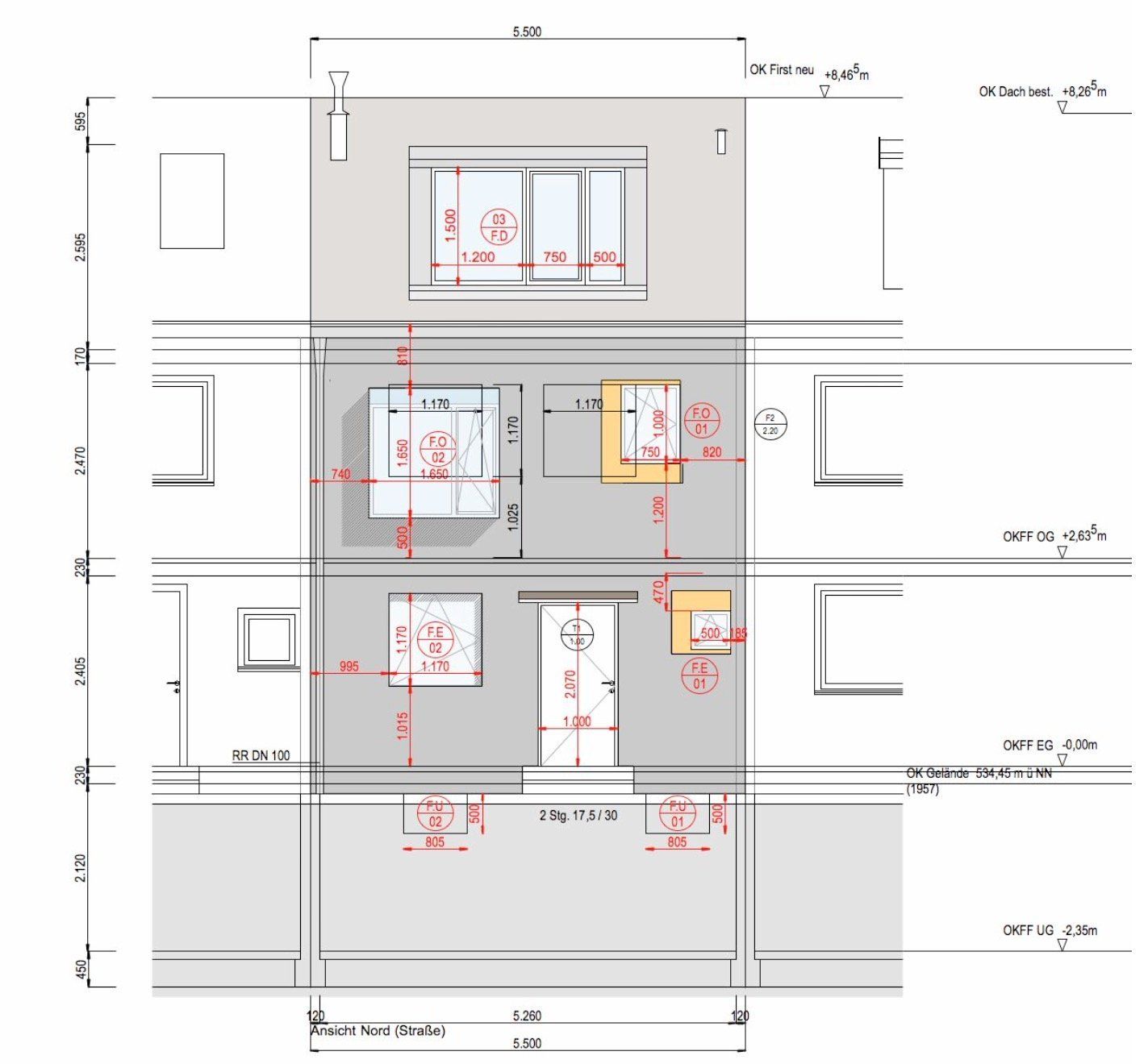
Zeilenhaus EAW_9
Planung und Ausführung zum Umbau eines schmalen Zeilenhauses in München Laim. Neustrukturierung des Grundrisses und Neuplanung der Bäder. Neue Innenerschließung mit einem skulpturalen Treppenelement aus Stahl. Schaffung eines großzügigen Raumvolumens auf kleiner Grundfläche durch Vollverglasung der Gartenfassade.
LPH 1-8






